Maison Ducpétiaux
Maison Ducpétiaux
Type
RénovationProgram
Rénovation et extension d'une maison unifamilialeLocalisation
Avenue Ducpétiaux à 1060 Saint-GillesArea
410 m2Budget
440 000 €Classe énergétique
BDate
Fin du chantier en 2024Developer
privéIntervenants
Neuf 81Enesta
Une belle maison de style néo-classique en région bruxelloise. Un nouveau propriétaire, soucieux de rénover son bien, de le rendre compatible avec les exigences énergétiques actuelles et d’y insuffler son imaginaire, ses envies, ses besoins. Une nouvelle mission pour Eon Architecture !
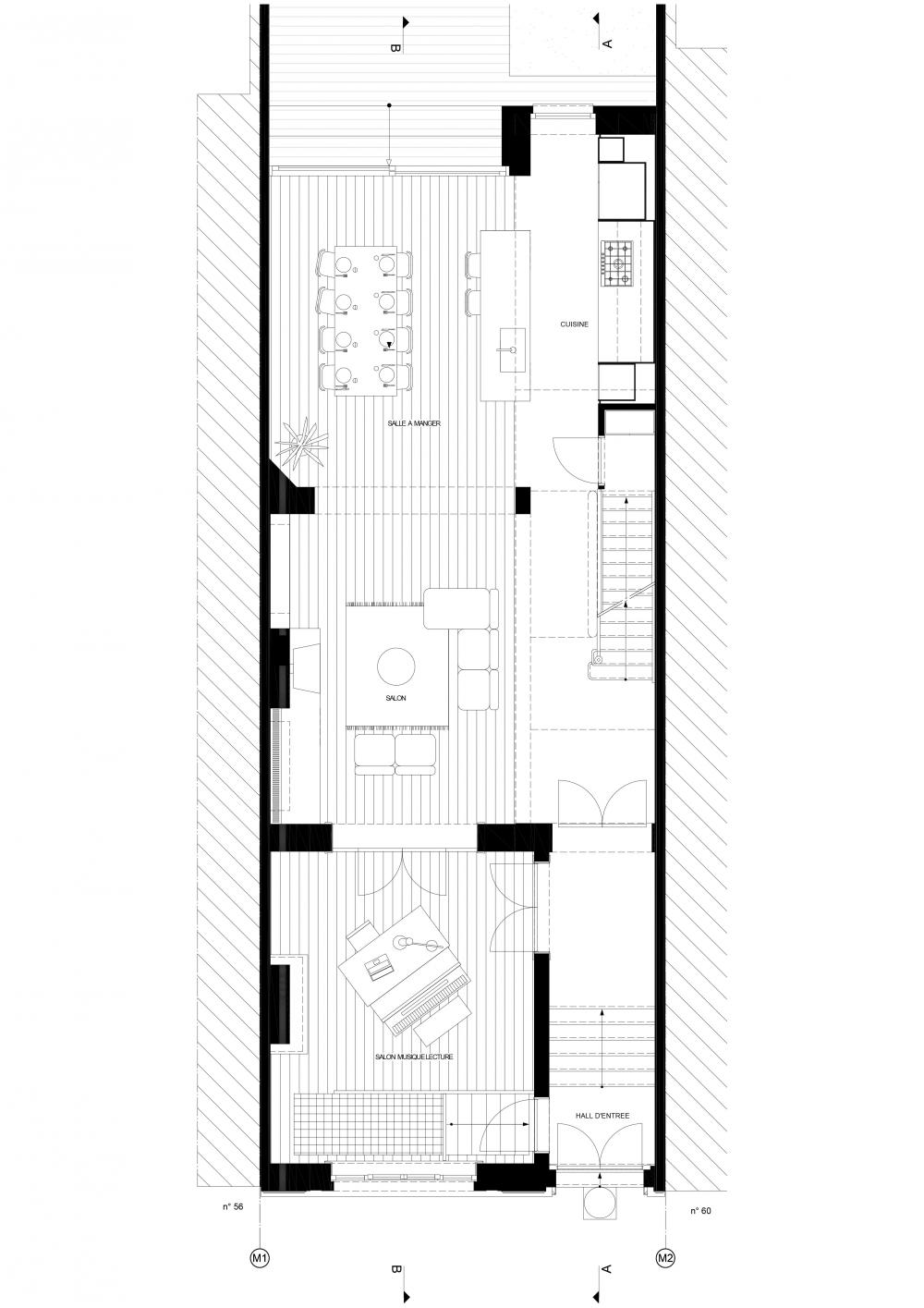
Comme à notre habitude, nous abordons le projet en partant des éléments existants, tant matériels qu’immatériels. Très rapidement, notre analyse permet de mette en avant un élément marquant de la maison existante. Là où elle est généralement enclavée entre les locaux, la cage d’escalier est ici mise en évidence, débordant de la façade arrière et présentant d’importants paliers à chaque étage. Nous décidons d’exploiter cette particularité. En nous inspirant des classiques de l’Architecture (Hôtel Solvay de Victor Horta), nous proposons d’ouvrir en partie les paliers et de créer un grand puit de lumière traversant le bâtiment sur toute sa hauteur.
Tout en respectant le programme de base, l’intervention principale migre de la classique extension en façade arrière vers la cage d’escalier qui devient le chœur de la vie des futurs occupants.
En parallèle à la mission d’Architecture, le Maître de l’ouvrage nous a confié la mission d’architecture d’intérieur. L’occasion pour nous de garantir la cohérence du projet jusque dans le moindre détail !
Photos: Utku Pekli

























