Logements Hector Denis
Logements Hector Denis
Type
Construction neuveProgramme
Immeuble de 5 logements de standingLocalisation
rue Hector Denis à 1050 IxellesSuperficie
1 000 m2Date
concours privé en 2005Maître d'ouvrage
privé
Intéressé par l’achat d’un des derniers terrains à bâtir de ce quartier recherché d’Ixelles, un promoteur privé fait appel à plusieurs agences d’architecture. Son cahier des charges est la réalisation du nombre maximal d’unités de logements qui vu le prix du terrain et la localisation doivent être de standing. Le promoteur a comme autre ligne de conduite de vouloir des espaces et des façades « inédit(e)s » et laisse donc carte blanche aux agences contactées.
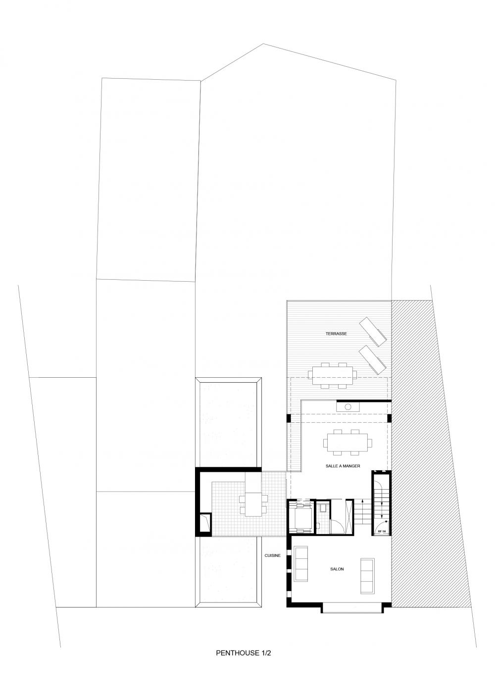
Le projet développe 4 unités de logement 2 chambres de plain-pied sur les 4 premiers niveaux et un duplex 2 chambres en retrait comme couronnement du volume. Le parti initial est de séparer volumétriquement les espaces jour de ceux de nuit par un fin volume complètement vitré et en retrait.
Le soubassement et le couronnement sont revêtus de plaques d’acier corten perforées pour contraster en légèreté avec la brutalité relative du béton apparent du reste du bâtiment. Les volumes des espaces de nuit sont percés de meurtrières horizontales permettant un grande privacité tout en procurant l’éclairement naturel nécessaire. Les cuisines sont placées en façade avant avec des cadrages de vue sur le parc situé en vis-à-vis. Les espaces à vivre sont conçus comme des espaces industriels rappelant l’esprit loft : structures de poutres et de colonnes en béton apparent, mur mitoyen laissés en briques anciennes, grandes baies vitrées coulissantes donnant sur des terrasses filantes.
crédit image: Philippe Steels




